Предыдущая часть
https://stereo.ru/p/exzrw-opyt-postroeniya-bolshogo-dk-v-malenkom-pomeschenii-chast-6
ЗВУК
Поменял процессор Yamaha CX-A5100 [ATMOS 11.2, HDMI 2.0, DAC ESS SABRE32] на Tone Winner AT-300 [13.3|CS42528|ATMOS|DTS-X|HDMI 2.0b].
Новый процессор по возможностям ручной настройки превосходит Yamaha в разы, звучит куда более нейтрально и лучше чем Yamaha и так же добавляет два канала процессинга. По автоматической настройке звука ничего сказать не могу, даже не пробовал.
Искренне рекомендую данный процессор для продвинутых пользователей.
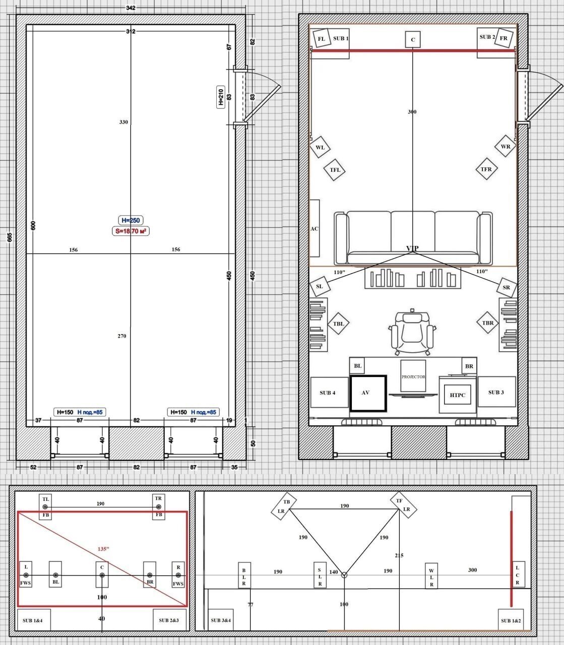
Сначала сделал конфигурацию 7.4.6 разницы с 7.4.4 не услышал, по этому переделал на 9.4.4 добавив wide каналы, которые закрыли успешно дырку между фронтами и сурраундами.
Поменял усилитель атмос-каналов Adcom GFA 7605 [AB|5x125W 8Ω] на Adcom GFA 5006 [AB|6x50W 8Ω] на атмос и вайд каналы.
Добавил сетевой фильтр Brennenstuhl Secure-Tec 19.500А с мастер-розеткой, очень удобная штука.

Но самый главный апгрейд по звуку случился не по аппаратуре, а по помещению.
А именно покупка и размещение комплекта НКЧП-панелей, ну и новые большие книжные стеллажи.
Про впечатления и измерения писал здесь
https://stereo.ru/p/r228q-vliyanie-zvukopogloschayuschih-paneley-v-dk-ili-ne-achh-edinoy
И на Новый Год поменял краегольный камень любого ДК, а именно Ковер.
ВИДЕО
Поменял звукопрозрачный 133" экран Yovanxer на Elite Screens AR135H4-AUHD [135"|16x9|Fixed Thin Frame|AcousticPro UHD|Gain 1.0].
Отличный экран с последним поколением плетеного полотна, гораздо лучше Yovanxer по фактуре и цветопередаче, позволивший полностью раскрыть потенциал проектора Wolf Cinema DCL-200FD [2K|LED|1xDLP 0.95|DarkChip4|800 ANSI LM|HDMI 1.3] с новым светодиодным блоком Luminus LED PT-120-TE поднявшим яркость в 1,6 раз.
Так же благодаря узким рамкам диагональ увеличилась на 2 дюйма.
Наконец сделал самодельную маскировочную систему для черных полос, в моем случае черную полосу, так как изображение автоматически через MadVR прижимается к нижней грани экрана.
Для форматов 2.40 и 2.35 вешается на крепления для карниза для 2.00 и1.85 сматывается вручную и вешается на те же крепления.
Планы на 2026 год.
Установка и настройка уже купленых процессора Emotiva RMC-1 [15.1|Dirac Live|AKM VERITA AK4490 DAC|ATMOS|DTS-X|HDMI 2.0b] и двух усилителей мощности IOTAVX AVXP1 [AB|7x110W 8Ω].
Смена NAS Qnap TS-469L на более производительный и с большим количеством мест под диски, HDD на 30TB так же уже куплены.
Попробовать как-то механизировать систему маскировки.
Сделать стойку под аппаратуру.
